La mayoría de los automóviles modernos tienen sistemas de frenos de dos líneas, pero algunos camiones de baja velocidad y vehículos agrícolas todavía usan sistemas de frenos de una sola línea para reducir los costos.
Pequeña fuerza operativa, se utiliza un refuerzo de vacío. En general, la gente suele referirse al amplificador de vacío de un solo tubo como amplificador de vacío, reforzador de vacío y reforzador de vacío.
Las funciones de los dos dispositivos son exactamente las mismas, excepto que el mecanismo de control (válvula atmosférica y válvula de vacío) del amplificador de vacío de línea única para camiones o vehículos agrícolas está diseñado para reducir los costos de producción.
Este diseño está fuera del refuerzo. El mecanismo de control del amplificador de vacío (válvula atmosférica y válvula de vacío) de la tubería doble del automóvil se encuentra dentro del amplificador de vacío.
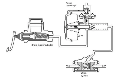
1. El papel del amplificador de vacío
La energía de vacío se usa para presurizar la salida de aceite del cilindro maestro, y el dispositivo de control es operado por la salida de presión hidráulica del cilindro maestro por el mecanismo del pedal del freno.
Los sobrealimentadores de vacío se utilizan en sistemas de servofreno de control indirecto, utilizados principalmente en camiones ligeros, como camiones de baja velocidad con dos ejes y seis ruedas o dos ejes y tres ruedas.

2. Principio de funcionamiento del amplificador de vacío
El principio de funcionamiento del amplificador de vacío se muestra en la Figura 4-3.

Figura 4-3 Diagrama del principio de funcionamiento del amplificador de vacío
(a) Presione el pedal del freno: (b) Suelte el pedal del freno
1 una válvula de aire: 2 una válvula de vacío: 3 un diafragma de la válvula de vacío: 4 un pistón de la válvula de control: 5 un pistón del cilindro de refuerzo: 6 una válvula de cierre; 7 una varilla de empuje: 8 un tubo de ventilación: 9-una membrana de la cámara de aire servo
Hoja: 10 un resorte de retorno del diafragma de la cámara de aire servo;
A-Cámara superior de la válvula de control; B-Cámara inferior de la válvula de control; Cámara izquierda C-Servo; Cámara D-Servo cámara derecha
1) Cuando se pisa el pedal del freno
El líquido de frenos se alimenta al cilindro de refuerzo desde el cilindro maestro, y la válvula de cierre 6 está en el estado abierto al principio, por lo que el líquido de frenos puede entrar por la parte delantera a través del orificio en el pistón del cilindro de refuerzo.
Cilindros de rueda de freno trasero. En este momento, la presión del cilindro de la rueda es igual a la presión del cilindro maestro. Al mismo tiempo, la entrada de aceite a presión al cilindro de refuerzo actúa sobre el pistón 4 de la válvula de control, empujando
Moviendo el asiento del diafragma hacia arriba, primero cierre la válvula de vacío 2 para aislar la cámara superior A de la válvula de control de la cámara inferior B, y luego abra la válvula de aire 1. Para que el aire pase a través del aire
El filtro fluye hacia la cavidad superior A de la válvula de control y la cavidad derecha D de la cámara de aire del servo (Figura 4-3 (a)), lo que aumenta la presión (es decir, reduce el vacío). Mientras controlas
El grado de vacío en la cámara inferior B de la válvula de control y la cámara izquierda C de la cámara de aire del servo permanece sin cambios. Bajo la acción de la diferencia de presión entre las cámaras C y D, el diafragma 9 de la servocámara acciona la varilla de empuje 7
Muévase hacia la izquierda para hacer que la válvula de cierre 6 se apoye contra el asiento de la válvula del pistón del cilindro de refuerzo 5 y aísle el cilindro maestro del freno de la cavidad izquierda del cilindro de refuerzo. En este momento, el pistón en el cilindro de refuerzo
Hay dos fuerzas: una es la fuerza hidráulica del cilindro maestro del freno; el otro es el empuje de la varilla de empuje. Por lo tanto, la cavidad izquierda del cilindro de refuerzo y cada cilindro de rueda
La presión hidráulica es más alta que la presión hidráulica del cilindro maestro, por lo que tiene un efecto de refuerzo.
A medida que disminuye el vacío en las cámaras A y D, el diafragma y los componentes de la válvula de control se mueven gradualmente hacia abajo. El grado de vacío en las cámaras A y D se reduce a un cierto valor.
Cuando la válvula de aire está cerrada, el grado de vacío se mantendrá en un cierto valor estable, que depende de la presión de control de entrada, es decir, la presión del cilindro maestro. Y controla la presión
También depende de la fuerza del pedal y de la carrera del pedal, por lo que la fuerza del conductor&sobre el pedal juega un papel decisivo en la fuerza de frenado.
2) Al subir el pedal del freno
Cuando el pedal del freno sube una cierta distancia [Figura 4-3 (b)], es decir, cuando la presión del cilindro maestro cae en un cierto valor, el estado de equilibrio de la válvula de control se destruye y la válvula de control
El pistón 4 y el asiento del diafragma se mueven hacia abajo y la válvula de vacío se abre, por lo que se reduce la presión de las cámaras A y D, de modo que se reduce la diferencia de presión entre las cámaras D y C. Presión de salida del cilindro de refuerzo
Se mantiene a un valor bajo, por lo que se debilita la fuerza de frenado. Cuando el pedal del freno está completamente relajado, todas las partes móviles se restauran bajo la acción de sus respectivos resortes de retorno.
Regrese a la posición original.
3) Reemplazo de fallas
Si el refuerzo de vacío falla o la tubería tiene fugas y el vacío es cero, la válvula de cierre 6 en el cilindro de refuerzo permanecerá abierta para hacer que el cilindro maestro y la rueda de freno
La trayectoria del aceite entre los cilindros no está obstruida. Todo el sistema equivale a trabajar sin sobrealimentador, pero la fuerza del pedal requerida es mayor.

